Top 13+ bản vẽ thiết kế shop quần áo, thời trang chi tiết nhất
Bản vẽ thiết kế shop quần áo là nền tảng để thi công hoàn thiện shop có diện mạo thu hút, hỗ trợ kinh doanh hiệu quả nhất. Nếu bạn đang kiếm bản vẽ thiết kế shop quần áo, 13+ gợi ý sau đây chắc chắn không nên bỏ qua.
Hoạt động trong lĩnh vực thời trang, shop quần áo luôn phải bắt kịp xu hướng cả về sản phẩm lẫn thiết kế không gian cửa hàng, mặt tiền cửa hàng. Nhưng yêu cầu ngày càng khắt khe hơn về thẩm mỹ và chất lượng của người tiêu dùng, đòi hỏi những người làm dịch vụ phải không ngừng thay đổi và hoàn thiện hơn.
Không ít shop quần áo ra đời ở thời điểm 10 - 15 năm trước đang phải chật vật với việc cải tạo cửa hàng, thậm chí một vài shop phải "đập đi xây lại" hoàn toàn để đáp ứng những yêu cầu về thẩm mỹ và không gian mua sắm của khách hàng hiện đại.
- Đâu là xu hướng thiết kế shop quần áo được ưa chuộng?
- Làm thế nào để xử lý những nhược điểm của shop quần áo có mặt bằng nhỏ, không vuông vức?
- Giải pháp tiết kiệm chi phí thi công shop quần áo nào hiệu quả?
Tất tần tật những vấn đề trên sẽ được giải quyết bằng bản thiết kế shop quần áo thông minh, khoa học và đúng xu hướng mới nhất hiện nay.
Tìm hiểu thêm:
- Top 19+ thiết kế shop quần áo 15m2 siêu đẹp, giải pháp đột phá kinh doanh
- Hướng dẫn cách thiết kế shop thời trang (Đầy đủ nhất)
- Kinh nghiệm thiết kế shop thời trang giá rẻ bạn nên biết
Bản vẽ thiết kế shop quần áo là gì?
Bản thiết kế shop quần áo là một tài liệu được tạo ra để mô tả và trình bày ý tưởng về cách bố trí cửa hàng, khu vực trưng bày sản phẩm, cách phối màu, cách sắp xếp sản phẩm, cách thức trang trí và tạo không gian để thu hút khách hàng đến cửa hàng mua sắm. Bản thiết kế này cũng bao gồm các chi tiết về vật liệu, màu sắc, ánh sáng, trang thiết bị, nội thất, và tất cả những yếu tố khác để tạo nên không gian mua sắm thuận tiện và hấp dẫn.
Bản thiết kế shop quần áo có thể được thực hiện bởi các chuyên gia thiết kế nội thất, hoặc bởi chủ cửa hàng sau khi đã thu thập đầy đủ thông tin và ý tưởng để thực hiện.

Bản vẽ thiết kế shop quần áo gồm những gì?
Bản vẽ thiết kế shop quần áo là bản vẽ mô tả chi tiết về cách bố trí không gian, vị trí trưng bày sản phẩm, màu sắc, ánh sáng và các yếu tố nội thất khác trong một cửa hàng bán quần áo. Bản vẽ này thường bao gồm các phần sau:
Bản vẽ kiến trúc:
Đây là bản vẽ miêu tả cấu trúc và kích thước của toàn bộ không gian shop quần áo. Nó thường bao gồm các thông tin về kích thước của phòng, vị trí cửa ra vào, cửa sổ, vị trí của tủ trưng bày, giá treo quần áo, khu vực tiếp khách, v.v.
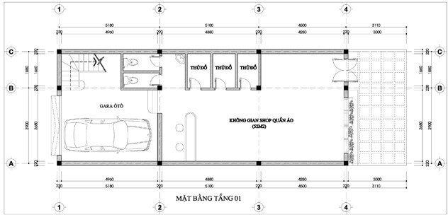
Bản vẽ mặt bằng:
Bản vẽ mặt bằng sẽ cho bạn biết cách bố trí các khu vực bên trong shop quần áo. Nó sẽ cho bạn biết vị trí của tất cả các khu vực, bao gồm sàn bán hàng, quầy thu ngân, khu vực phục vụ khách, khu vực thử đồ, v.v.


Bản vẽ thiết kế nội thất:
Bản vẽ này mô tả cách bố trí nội thất và các phụ kiện trong shop quần áo. Nó bao gồm bố trí tủ trưng bày, giá treo quần áo, đèn chiếu sáng, các loại kệ và tủ, ghế ngồi cho khách hàng, v.v.
Bản vẽ phối cảnh:
Đây là bản vẽ thể hiện mối quan hệ giữa shop quần áo và các khu vực xung quanh. Nó sẽ cho bạn biết vị trí của shop quần áo trong khu vực và cách nó giao thông với khu vực xung quanh.
Tất cả những bản vẽ trên sẽ được kết hợp với nhau để tạo nên một bản thiết kế shop quần áo hoàn chỉnh. Bản vẽ thiết kế shop quần áo cung cấp cho chủ cửa hàng một kế hoạch chi tiết để thiết kế và trang trí cửa hàng một cách hiệu quả, giúp tăng doanh thu và thu hút khách hàng. Nó cũng giúp cho nhà thiết kế hoặc nhà thầu nội thất hiểu rõ hơn về yêu cầu của khách hàng và đưa ra các giải pháp thiết kế tốt nhất để đạt được mục tiêu kinh doanh của cửa hàng.
Vai trò của bản thiết kế shop quần áo
Bản thiết kế shop quần áo đóng vai trò rất quan trọng trong quá trình thiết kế và xây dựng một cửa hàng quần áo chuyên nghiệp. Không đơn thuần là thẩm mỹ, nó còn can thiệp sâu hơn vào quá trình vận hành, các chiến lược kinh doanh và phát triển thương hiệu.
Dưới đây là một số vai trò cơ bản của bản thiết kế shop quần áo:
- Bố trí không gian hợp lý, tối ưu hóa diện tích và tạo không gian thuận tiện cho việc trưng bày sản phẩm và di chuyển của khách hàng trong quá trình mua sắm
- Sử dụng màu sắc phù hợp, tạo không gian trang nhã, thân thiện và dễ chịu cho khách hàng
- Đưa ra phương án bố trí chi tiết từ hệ thống đèn, tủ kệ, bàn chải trang điểm, gương soi đến địa điểm đặt logo, quảng cáo, trang trí cây xanh và hình ảnh trang trí tường để tạo nên không gian bán hàng thẩm mỹ và chuyên nghiệp
- Đưa ra giải pháp thiết kế về trang thiết bị, đồ nội thất và vật liệu để tạo nên không gian sang trọng, hiện đại và ấn tượng,... phù hợp với từng phong cách của hàng cụ thể
- Thiết kế hệ thống ánh sáng và thông gió phù hợp để đảm bảo môi trường làm việc thoải mái, không bị ánh nắng chói, ô nhiễm môi trường
- Tối ưu hóa việc sắp xếp và trưng bày sản phẩm, tạo điểm nhấn cho những sản phẩm bán chạy, thu hút khách hàng và thúc đẩy doanh số
- Tất cả các yếu tố trên được thể hiện trong bản thiết kế shop quần áo, giúp cho chủ cửa hàng có thể đưa ra kế hoạch triển khai thực tế hiệu quả, giúp tăng doanh số và nâng cao trải nghiệm của khách hàng.
Top 13+ bản thiết kế shop quần áo được chuộng nhất












Đơn vị thực hiện bản vẽ thiết kế shop quần áo chuyên nghiệp
Pendecor là một đơn vị thiết kế shop/cửa hàng/showroom chuyên nghiệp, uy tín hàng đầu tại Việt Nam. Sở hữu hàng trăm dự án trên toàn quốc, Pendecor đã mang giải pháp hỗ trợ kinh doanh hiệu quả cho nhiều khách hàng/chủ đầu tư.
Pendecor cung cấp dịch vụ thiết kế shop quần áo từ khâu tư vấn, thiết kế, đến thi công và hoàn thiện. Đội ngũ thiết kế của Pendecor có tầm nhìn sáng tạo và kiến thức chuyên môn sâu rộng, giúp khách hàng có được một bản vẽ thiết kế shop quần áo đầy đủ, chính xác và hoàn hảo.
Bên cạnh đó, Pendecor sử dụng các công nghệ và thiết bị hiện đại, kết hợp với quy trình làm việc chuyên nghiệp để đảm bảo tính chính xác và độ bền của sản phẩm. Tất cả những điều này giúp Pendecor trở thành đơn vị tin cậy và được khách hàng đánh giá cao trong lĩnh vực thiết kế shop quần áo.
Luôn mang đến sự mới mẻ và đột phá trong thiết kế, những bản thiết kế shop quần áo được thực hiện bởi Pendecor mang đến cho khách hàng những lợi thế vượt trội về kinh doanh so với đối thủ trước sự cạnh tranh khốc liệt của thị trường hiện nay.
Nếu anh/chị đang tìm bản thiết kế shop quần áo ưu việt nhất và cần được tư vấn chi tiết về thiết kế shop quần áo, hãy liên hệ với chúng tôi để được hỗ trợ chi tiết nhất hoàn toàn miễn phí. Đội ngũ Pendecor luôn sẵn sàng 24/7.
Công Ty TNHH Nội Thất Pendecor
- Văn phòng TPHCM: Lầu 9, Cao Ốc An Khánh, 52 Song Hành, Phường Bình Trưng, Hồ Chí Minh
- Xưởng HCM: 781E, đường Nguyễn Duy Trinh, Phường Long Trường, Hồ Chí Minh
- Hotline: 0909.203.206
- Mail: pendecorvn@gmail.com
Đánh giá bài viết: (2 lượt)