Top 06+ bản vẽ thiết kế tiệm nail đẹp, thông minh cho mọi diện tích

03/05/2021 - 10:05

Bản vẽ thiết kế tiệm nail là yếu tố quan trọng quyết định chất lượng, công năng, thẩm mỹ và chi phí xây dựng cửa hàng. Đầu tư hàng chục thậm chí hàng trăm triệu nhưng bản vẽ thiết kế không khả thi thì rất khó để hỗ trợ cho việc kinh doanh và phát triển thương hiệu lâu dài.

> Có thể bạn quan tâm:

Nếu anh/chị đang có ý định mở tiệm nail và cần tìm bản vẽ thiết kế phù hợp, tuyệt đối không nên bỏ qua những nội dung của bài viết này. Tất tần tật những vấn đề liên quan đến bản vẽ thiết kế tiệm nail và giải pháp để tiết kiệm tối ưu chi phí sẽ được các chuyên gia đầu ngành chia sẻ ngay sau đây.

Hiểu đúng và đủ về bản vẽ thiết kế tiệm nail

Được nhắc đến rất nhiều nhưng không phải ai cũng hiểu đúng và đủ về bản vẽ thiết kế. Không đơn thuần là hình ảnh mô phỏng, bản vẽ thiết kế sẽ hiển thị những thông số kỹ thuật được nghiên cứu dựa trên thực trạng mặt bằng xây dựng và sự liên kết với kết cấu, công năng và phong cách.

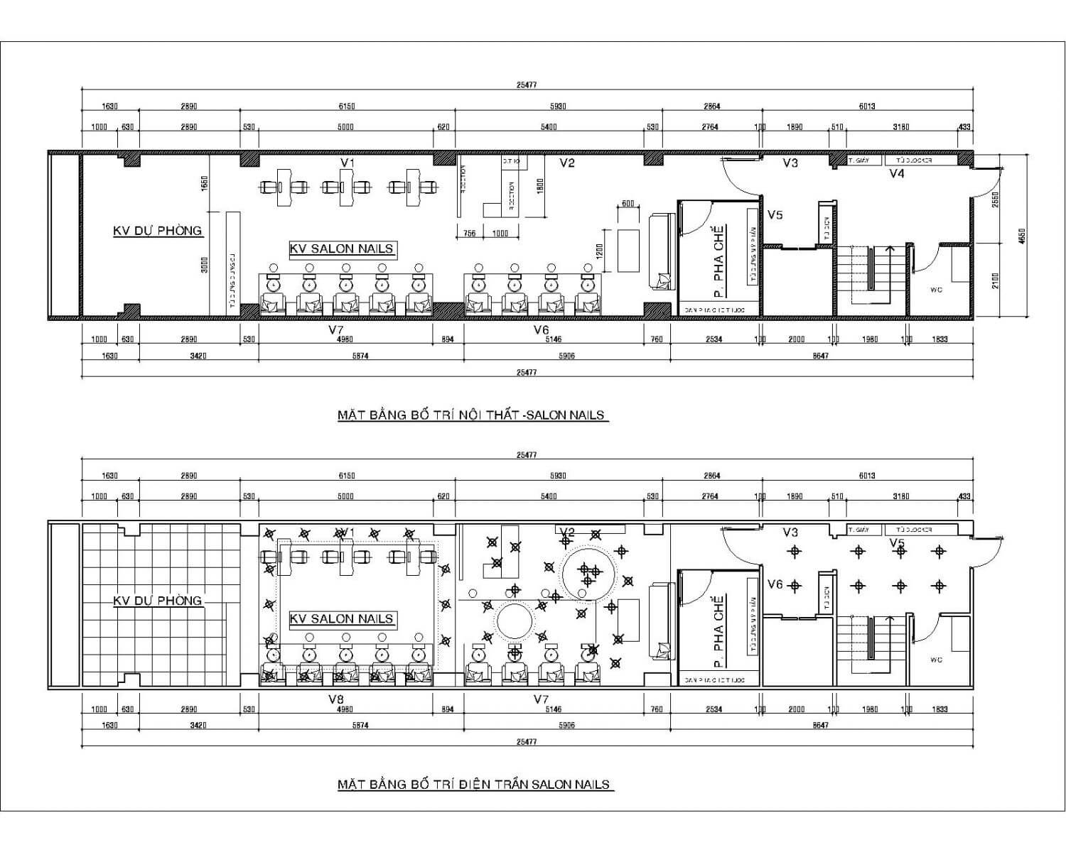
Bản vẽ thiết kế cửa hàng là gì?

Bản vẽ thiết kế cửa hàng (hoặc còn gọi là bản vẽ kiến trúc cửa hàng) nó diễn đạt ý tưởng và kế hoạch thiết kế một cách rõ ràng, là một công cụ quan trọng trong ngành kiến trúc, thiết kế nội thất, kỹ thuật và các lĩnh vực khác liên quan đến xây dựng và sáng tạo.

Thông qua các hình ảnh, biểu đồ, đồ họa và ký hiệu, nó trình bày các yếu tố quan trọng như kích thước, hình dạng, vị trí, cấu trúc, vật liệu, hệ thống, và hướng dẫn cụ thể liên quan đến sản phẩm hoặc công trình cụ thể.

Bản vẽ thiết kế cửa hàng cung cấp thông tin rõ ràng về không gian, cấu trúc và vị trí các yếu tố quan trọng trong cửa hàng, như cửa chính, kệ trưng bày, quầy thu ngân, khu vực hàng hóa, và các khu vực phục vụ khách hàng.

bản vẽ thiết kế tiệm nail Pendecor
Hiểu đúng và đủ về bản vẽ thiết kế tiệm nail

Những tài liệu cơ bản có trong bản vẽ thiết kế

Bản vẽ thiết kế có thể bao gồm nhiều loại tài liệu khác nhau, chẳng hạn như:

  • Bản vẽ kiến trúc (Architectural Drawings): Đây là những bản vẽ chính xác về bố trí, kích thước và hình dáng của công trình. Bao gồm bản vẽ tầng, bản vẽ mặt cắt, bản vẽ mặt bên, và các biểu đồ về vị trí địa lý
  • Bản vẽ nội thất (Interior Design Drawings): Tập trung vào các yếu tố nội thất như bố trí, vị trí của các món đồ nội thất, trang trí, ánh sáng và màu sắc. Bản vẽ nội thất giúp tạo ra một không gian thẩm mỹ và chức năng
  • Bản vẽ phối cảnh (Site Plan Drawings): Thể hiện sự bố trí của công trình trong môi trường xung quanh, bao gồm địa hình, cây cối, con đường và các yếu tố môi trường khác
  • Bản vẽ điện (Electrical Drawings): Cung cấp chi tiết về hệ thống điện trong công trình, bao gồm vị trí ổ cắm, công tắc, đèn và các thiết bị điện khác
  • Bản vẽ thang máy và hệ thống cơ điện (Mechanical and Electrical Drawings): Được sử dụng cho các công trình có thang máy hoặc hệ thống cơ điện phức tạp
  • Bản vẽ hồ sơ (Blueprints): Là những bản vẽ chất lượng cao, thường in trắng đen trên nền giấy xanh. Chúng thường được sử dụng để làm việc xây dựng thực tế
  • Bản vẽ phác thảo (Sketches): Là những vẽ tay tự do hoặc vẽ bằng máy tính đơn giản để diễn đạt ý tưởng thiết kế ban đầu
  • Bản vẽ 3D (3D Drawings): Cung cấp một hình ảnh 3D trực quan về thiết kế, giúp người xem hiểu rõ hơn về không gian và hình dáng của công trình
  • Bản vẽ hệ thống thông gió và điều hòa (HVAC Drawings): Thể hiện cách hệ thống thông gió và điều hòa không khí được thiết kế và cài đặt trong công trình.

Tùy thuộc vào loại công trình và mục đích sử dụng, bản vẽ thiết kế có thể bao gồm một hoặc nhiều loại tài liệu để trình bày thông tin một cách chi tiết và minh bạch.

trang trí tiệm nail Pendecor
Bản vẽ thiết kế trang trí tiệm nail

Các yếu tố được thể hiện trong bản vẽ thiết kế

Bản vẽ thiết kế cửa hàng là một công cụ quan trọng giúp các chủ cửa hàng, kiến trúc sư và nhà thiết kế hiểu rõ cách mà không gian cửa hàng sẽ được tổ chức và phát triển.. Dưới đây là các yếu tố chính thường được thể hiện trong bản vẽ thiết kế cửa hàng:

Bố trí không gian

Bản vẽ sẽ mô tả cách mà không gian bên trong cửa hàng được bố trí. Điều này bao gồm vị trí của các khu vực khác nhau như khu bày hàng, khu dành cho khách hàng, quầy thu ngân, khu vực làm việc nhân viên, vv.

Vị trí cửa và cửa sổ

Bản vẽ sẽ chỉ ra vị trí của cửa ra vào chính, cửa thoát hiểm và cửa sổ. Điều này giúp xác định cách mà người dùng và khách hàng sẽ tiếp cận cửa hàng.

Kết cấu xây dựng

Bản vẽ sẽ thể hiện cấu trúc xây dựng của cửa hàng, bao gồm vách ngăn, trần, sàn và các thành phần cấu trúc khác. Điều này giúp hiểu rõ cách mà không gian được hình thành và hỗ trợ.

Kích thước và đo lường

Bản vẽ cung cấp thông tin về kích thước của các khu vực và đối tượng trong cửa hàng. Điều này giúp đảm bảo rằng không gian sẽ phù hợp với mục đích sử dụng.

Hệ thống điện và ánh sáng

Bản vẽ thể hiện vị trí và đường dây của các điểm sáng và điện trong cửa hàng. Điều này bao gồm ổ cắm, công tắc, đèn và các thiết bị khác liên quan đến điện.

Nội thất và trang trí

Vị trí của nội thất và các yếu tố trang trí như ghế, bàn, kệ trưng bày, hình ảnh trang trí, vv.

Hệ thống thông gió và điều hòa

Nếu cần, bản vẽ có thể thể hiện vị trí của hệ thống thông gió và điều hòa không khí trong cửa hàng.

Ký hiệu và hướng dẫn

Bản vẽ có thể bao gồm các ký hiệu và hướng dẫn để giúp người đọc hiểu rõ hơn về các yếu tố trong thiết kế.

Thông tin liên hệ

Cuối cùng, bản vẽ thường cung cấp thông tin liên hệ của người thiết kế hoặc người chịu trách nhiệm về thiết kế.

Đối với các dự án thuê thiết kế riêng và đơn vị thi công riêng, vai trò của bản vẽ rất quan trọng trong việc truyền tải ý đồ, câu chuyện mà người thiết kế muốn mang lại cho cửa hàng. Ngoài việc đọc bản vẽ thiết kế, nên có sự gặp gỡ giữa kỹ sư thiết kế và kỹ sư thi công để hiểu đúng về những chi tiết đặc biệt trong từ bản vẽ.

thiết kế tiệm nail nhỏ đẹp Pendecor
Các yếu tố được thể hiện trong bản vẽ thiết kế tiệm nail nhỏ đẹp

05 lý do nên “chi tiền” cho bản vẽ thiết kế tiệm nail chuyên nghiệp

Không ngẫu nhiên mà các chủ tiệm nail lại chi tiền triệu thậm chí hàng chục triệu cho việc thiết kế bản vẽ. Có một sự khác biệt rất lớn giữa cửa hàng được thiết kế xây dựng bài bản và cửa hàng được sử dụng đúng nghĩa đen bày bán. Ngoài lợi thế tối ưu diện tích, mang lại hiệu ứng về thẩm mỹ thì đây còn là điểm mấu chốt tạo nên sự khác biệt, yếu tố nhận diện trong hàng chục, hàng trăm tiệm khác tại khu vực đang cùng hoạt động.

So sánh về tuổi đời với các tiệm ra đời trước chắc chắn tiệm mới sẽ thua thiệt, nhưng bạn có nhiều yếu tố khác để chiếm lĩnh thị phần, nhanh chóng xây dựng được tệp khách hàng tiềm năng cho riêng mình như: chất lượng dịch vụ, giá thành, không gian trải nghiệm, hiệu ứng thương hiệu,...

Tối ưu hóa không gian và trải nghiệm khách hàng

Tận dụng hiệu quả diện tích mặt bằng xây dựng, bố trí các phòng/vị trí chức năng khoa học, có tính liên kết cao. Từ việc bố trí ghế ngồi, kệ trưng bày sản phẩm đến không gian chờ đợi, mọi yếu tố đều được sắp xếp một cách thông minh để tạo ra trải nghiệm tốt nhất cho khách hàng.

Tăng giá trị thương hiệu

Bản vẽ chuyên nghiệp cho phép bạn tạo ra một thiết kế tiệm nail độc đáo và phản ánh thương hiệu của bạn. Sự tương thích giữa màu sắc, trang trí và logo sẽ tạo ra một không gian thương mại thú vị và gợi cảm hứng cho khách hàng.

Tạo sự khác biệt, tăng khả năng cạnh tranh

Thị trường tiệm nail có sự cạnh tranh khá lớn. Một thiết kế chuyên nghiệp giúp bạn nổi bật và khác biệt với những đối thủ khác, thu hút sự chú ý của khách hàng và tạo sự tò mò.

Thu hút và dây ấn tượng với khách hàng

Một tiệm nail với thiết kế chuyên nghiệp có khả năng tạo ra ấn tượng mạnh mẽ đối với khách hàng. Bản vẽ chuyên nghiệp là cơ hội để bạn thể hiện sự tâm huyết và cam kết trong việc tạo ra một môi trường đẹp và chất lượng cho khách hàng của mình.

Tiết kiệm thời gian và chi phí

Đầu tư vào bản vẽ chuyên nghiệp giúp tránh các sai sót trong quá trình xây dựng hoặc trang trí tiệm. Việc thực hiện thiết kế theo bản vẽ chính xác sẽ giúp tiết kiệm chi phí do việc phải sửa chữa hoặc điều chỉnh sau này.

thiet ke tiem nail Pendecor
05 lý do nên “chi tiền” cho bản vẽ thiết kế tiệm nail chuyên nghiệp

Bí quyết để sở hữu bản vẽ thiết kế tiệm nail không đụng hàng, siêu hút khách

Tùy vào diện tích tiệm nail mà chi phí thiết kế sẽ nhiều ít khác nhau. Với mức giá mặt bằng trên thị trường hiện nay đang là 200.000 đồng/m2. Phí thiết kế tiệm nail 60m2 sẽ rơi vào khoảng 12 triệu/bản vẽ.

Đối với bản vẽ thiết kế tiệm nail, ngoài các yêu cầu về kỹ thuật, yếu tố về thẩm mỹ như: phong cách thiết kế, yếu tố tạo điểm nhấn, sự sáng tạo và điểm riêng của thương hiệu sẽ là bài toán cần các đơn vị chuyên nghiệp tìm lời giản. Một vài bí quyết để có bản vẽ thiết kế hút khách, ấn tượng, không đụng hàng các chủ tiệm có thể tham khảo như:

  • Hãy tạo ra một ý tưởng thiết kế độc đáo và sáng tạo cho tiệm nail của bạn. Tìm kiếm những yếu tố độc đáo trong thiết kế nội thất, màu sắc, trang trí và bố trí không gian để tạo nên sự khác biệt.
  • Sử dụng màu sắc, logo và phong cách thiết kế liên quan đến thương hiệu của bạn để tạo ra sự nhận diện và gợi nhớ đối với khách hàng.
  • Cân nhắc thiết kế vị trí ghế ngồi, kệ trưng bày sản phẩm và đèn trang trí để tạo ra môi trường thân thiện và kích thích sự tương tác.
  • Ánh sáng có thể tạo ra sự độc đáo cho không gian. Sử dụng ánh sáng tự nhiên cũng như ánh sáng nhân tạo để tạo nên môi trường thoải mái và hấp dẫn.
  • Chọn vật liệu nội thất và trang trí khác biệt và độc đáo để tạo nên sự thú vị. Ví dụ, sử dụng gạch hoặc gỗ với họa tiết độc đáo, hoặc sơn màu đặc biệt để làm nổi bật không gian.
  • Tạo không gian thoải mái bằng cách chọn thiết kế mở và thông thoáng. Điều này giúp tạo cảm giác rộng rãi và dễ chịu cho khách hàng.
  • Sử dụng công nghệ trong thiết kế để tạo ra sự hiện đại và tiện lợi. Ví dụ, có thể tích hợp hệ thống đặt lịch trực tuyến hoặc màn hình giới thiệu sản phẩm.
  • Điều đặc biệt hơn hết là đặt tâm huyết và tình cảm vào thiết kế của bạn. Khách hàng thường cảm nhận được sự tận tâm và đam mê qua không gian được tạo ra. Sự kết hợp ăn ý giữa các yếu tố này sẽ mang lại một bản vẽ thiết kế tiệm nail sở hữu những giá trị mới mẻ, tạo điểm điểm chấm phá vô cùng độc đáo trong lòng khách hàng.
thiết kế tiệm nail nhỏ Pendecor
Bí quyết để sở hữu bản vẽ thiết kế tiệm nail nhỏ

06+ bản vẽ thiết kế tiệm nail ấn tượng, thông minh dành cho anh/chị

thiết kế tiệm nail đẹp Pendecor

trang trí tiệm nail nhỏ đẹp Pendecor

decor tiệm nail nhỏ Pendecor

mẫu tiệm nail nhỏ đẹp Pendecor

cách trang trí tiệm nail nhỏ đẹp Pendecor

decor tiệm nail nhỏ xinh Pendecor

thiết kế tiệm nail nhỏ đơn giản Pendecor

trang trí tiệm nail diện tích nhỏ Pendecor

thiết kế phòng nail nhỏ Pendecor

cách trang trí tiệm nail Pendecor

cách trang trí tiệm nail thu hút khách Pendecor

nội thất tiệm nail Pendecor

thiết kế tiệm tóc và nail Pendecor

thiết kế cửa hàng nail Pendecor

mẫu tiệm nail nhỏ Pendecor

Công ty nào thiết kế tiệm nail uy tín, chất lượng, giá rẻ TOP đầu 2024?

Trong thời đại internet phát triển, việc tìm kiếm thông tin đã trở nên quá dễ dàng. Khách hàng được tiếp cận với thông tin dịch vụ của các đơn vị thiết kế tiệm nail từ nhiều kênh khác nhau. Tuy nhiên, giữ việc đọc và chọn lọc là một quá trình cần sự kỹ lưỡng để chắc chắn hơn trong quyết định lựa chọn của mình.

Đa phần các chủ cửa hàng sẽ có những tiêu chí cụ thể để đảm bảo rằng họ chọn được một đối tác uy tín, chất lượng và có giá phải chăng. Một số tiêu chí quan trọng như:

  • Kinh nghiệm và uy tín
  • Khả năng sáng tạo
  • Chất lượng nguyên vật liệu, nội thất
  • Khả năng quản lý dự án
  • Năng lực thi công
  • Giá cả hợp lý.

Để thuận tiện hơn trong việc kiểm soát chi phí và hiệu quả dự án, hầu hết các chủ cửa hàng đều ưu tiên chọn dịch vụ thiết kế - thi công trọn gói. Chỉ cần làm việc với một đơn vị duy nhất, quy trình làm việc được thiết kế rõ ràng - khoa học từ đầu, giải pháp tài chính phù hợp, hạn chế tối đa phát sinh.

Pendecor là một trong những công ty thiết kế tiệm nail top đầu tại Việt Nam có khả năng đáp ứng tất cả các tiêu chí nêu trên. Chúng tôi đã xây dựng uy tín với sự tận tâm, chất lượng và sự sáng tạo trong lĩnh vực thiết kế nội thất và không gian thương mại. Pendecor đáp ứng các yếu tố quan trọng như kinh nghiệm, chất lượng vật liệu và khả năng quản lý dự án, đồng thời cung cấp giá trị vượt trội cho khách hàng.

Với Pendecor, mỗi dự án sẽ là một cơ hội mới để phát huy sự sáng tạo và năng lực chuyên môn đã được tích lũy. Hướng đến những giải pháp mang tính đột phá trong kinh doanh, chúng tôi mong muốn sẽ là đơn vị đồng hành cùng anh/chị, quý công ty, cửa hàng,... đặt nền tảng vững chắc cho chiến lược chinh phục thị trường.

Hãy liên hệ với chúng tôi để được hỗ trợ chi tiết hơn thông qua các phương thức dưới đây:

Công Ty TNHH Nội Thất Pendecor

  • Văn phòng TPHCM: Lầu 9, Cao Ốc An Khánh, 52 Song Hành, Phường Bình Trưng, Hồ Chí Minh
  • Xưởng HCM: 781E, đường Nguyễn Duy Trinh, Phường Long Trường, Hồ Chí Minh
  • Hotline: 0909.203.206
  • Mail: pendecorvn@gmail.com

Chưa có đánh giá nào ( Đánh giá của bạn )

👍👍👍